Warm profiles. Proven efficiency.
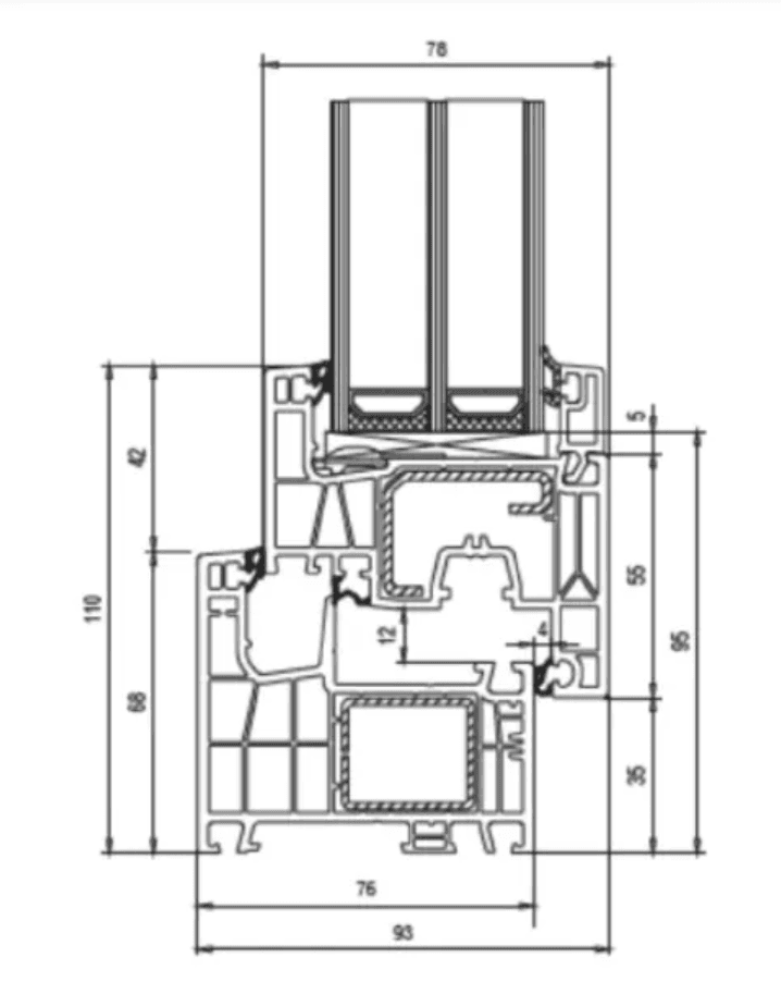
uPVC windows and sliding doors offering outstanding thermal insulation, low maintenance, and excellent value. German-engineered systems from Aluplast - with multi-chamber profiles, triple glazing, and a finish quality that rivals aluminum.
Need help choosing?
Send me your window schedule and I'll match the right pvc system to every opening.




